Sun Group Cù Lao Phố
Sun Group Cù Lao Phố là đại đô thị sinh thái ven sông quy mô lớn tại khu vực Đông Nam Bộ, được phát triển bởi liên danh các doanh nghiệp trong đó có Sun Group. Dự án được quy hoạch trên cù lao giữa sông với tổng mức đầu tư dự kiến hơn 72.000 tỷ đồng, hứa hẹn trở thành trung tâm đô thị – du lịch – thương mại mới của khu vực.
Với vị trí hiếm có 4 mặt giáp sông, dự án được định hướng phát triển thành khu đô thị sinh thái cao cấp kết hợp nghỉ dưỡng, thương mại và du lịch, mang đến môi trường sống hiện đại và hài hòa với thiên nhiên. Bài viết này, 360 Bất Động Sản sẽ cung cấp cho quý khách hàng góc nhìn toàn diện và chuyên sâu về dự án Sun Group Cù Lao Phố để giúp các nhà đầu tư có thêm lựa chọn sáng giá trong năm nay.
Giới thiệu chung về dự án Sun Group Cù Lao Phố
Sun Group Cù Lao Phố được định hướng trở thành siêu đô thị ven sông hiện đại bậc nhất Đồng Nai, kết hợp không gian sống xanh với hệ sinh thái dịch vụ du lịch – thương mại – giải trí.
Dự án được phát triển trên cù lao giữa sông, nơi hội tụ cảnh quan thiên nhiên đặc sắc và quỹ đất lớn hiếm hoi còn lại tại khu vực trung tâm Biên Hòa. Nhờ vị trí độc đáo này, dự án có lợi thế lớn về tầm nhìn, môi trường sống và tiềm năng phát triển du lịch ven sông.
Theo quy hoạch, khu đô thị sẽ bao gồm nhiều phân khu chức năng như: khu nhà ở, khu thương mại dịch vụ, khu nghỉ dưỡng, công viên sinh thái và hệ thống tiện ích đô thị hiện đại. Đây được kỳ vọng sẽ trở thành biểu tượng đô thị mới của Đồng Nai trong tương lai.
Thông tin chi tiết dự án
|
Tên dự án |
Sun Group Cù Lao Phố |
|
Tên gọi khác |
Sun Group Đồng Nai, Khu đô thị Hiệp Hòa |
|
Vị trí |
Cù Lao Phố, phường Trấn Biên, TP. Biên Hòa, tỉnh Đồng Nai |
|
Chủ đầu tư / Liên danh phát triển |
Liên danh gồm:
|
|
Đơn vị phát triển chính |
Tập đoàn Sun Group |
|
Tổng diện tích |
291 ha |
|
Tổng vốn đầu tư dự kiến |
Khoảng 72.289 tỷ đồng |
|
Quy mô dân số |
Khoảng 31.600 người |
|
Tổng số sản phẩm nhà ở |
Hơn 10.191 sản phẩm |
|
Loại hình phát triển |
Khu đô thị đảo phức hợp: nhà liền kề, biệt thự, chung cư thương mại, nhà ở xã hội, nhà ở tái định cư, khu nghỉ dưỡng – du lịch, thương mại – dịch vụ |
|
Các loại hình nhà ở |
|
|
Mật độ xây dựng |
Dự kiến khoảng 35-40% (ước tính theo báo cáo quy hoạch sơ bộ) |
|
Các giai đoạn chính (dự kiến) |
|
NHẬN CUỐN BROCHURE DỰ ÁN
7 Lý Do Để Dự Án Sun Group Cù Lao Phố Là Nơi Đáng Để Đầu Tư
1. Vị trí ven sông hiếm có
Dự án nằm trên Cù Lao Phố giữa hai nhánh sông Đồng Nai, sở hữu cảnh quan tự nhiên, không gian sống thoáng đãng và giá trị bất động sản ven sông cao.
2. Kết nối giao thông thuận lợi
Dễ dàng kết nối TP.HCM và các khu kinh tế trọng điểm phía Nam, hưởng lợi từ hệ thống hạ tầng đang phát triển mạnh.
3. Quy hoạch đô thị đa chức năng
Kết hợp nhà ở, thương mại, dịch vụ, du lịch và giải trí, tạo nên quần thể đô thị hiện đại và sôi động.
4. Tiềm năng tăng giá cao
Giá đất Biên Hòa tăng trưởng ổn định, trong khi quỹ đất ven sông ngày càng khan hiếm, giúp gia tăng giá trị bất động sản lâu dài.
5. Hưởng lợi từ quá trình đô thị hóa
Khu vực Đồng Nai đang phát triển mạnh với nhiều dự án hạ tầng lớn như sân bay Long Thành và các tuyến giao thông trọng điểm.
6. Chủ đầu tư uy tín
Dự án được phát triển bởi liên danh do Sun Group dẫn dắt, đảm bảo năng lực tài chính, tiến độ và chất lượng phát triển dự án.
7. Tiềm năng khai thác kinh doanh – du lịch
Dự án hướng tới trở thành trung tâm giao thương, du lịch và văn hóa mới của Biên Hòa, thu hút khách và nhà đầu tư lâu dài.
Đăng ký tham quan dự án căn hộ
Cảm ơn Quý Khách Đã gửi thông tin.
Vị trí dự án Sun Group Cù Lao Phố
Tọa lạc tại “đảo xanh” giữa lòng Biên Hòa
Dự án Sun Group Cù Lao Phố nằm trên khu vực Cù Lao Phố, thuộc phường Hiệp Hòa, trung tâm Biên Hòa, tỉnh Đồng Nai. Đây là hòn đảo tự nhiên lớn nằm giữa dòng sông Đồng Nai, được xem là vị trí hiếm hoi khi sở hữu 4 mặt giáp sông, mang đến không gian sống sinh thái trong lành và tách biệt với sự ồn ào của đô thị.
Nhờ vị trí nằm ngay trung tâm thành phố, khu đô thị vừa giữ được môi trường sống yên bình ven sông vừa dễ dàng kết nối đến các khu vực kinh tế – hành chính quan trọng của tỉnh Đồng Nai cũng như vùng kinh tế trọng điểm phía Nam.
Tứ cận tiếp giáp dự án
Khu đô thị Hiệp Hòa được bao bọc bởi hệ thống sông và khu dân cư hiện hữu, tạo nên cảnh quan tự nhiên đặc biệt:
- Phía Bắc và Đông Bắc: giáp các phường Thống Nhất, Tân Mai qua nhánh chính của sông Đồng Nai (sông Cái).
- Phía Nam và Đông Nam: giáp phường An Bình và khu vực ngã tư Vũng Tàu, ngăn cách bởi dòng sông Đồng Nai.
- Phía Tây và Tây Nam: giáp các khu dân cư ven sông của trung tâm Biên Hòa.
- Phía Tây Bắc: giáp phường Bửu Hòa và phường Quang Vinh.
Nhờ địa thế này, dự án không chỉ có cảnh quan sông nước độc đáo mà còn sở hữu yếu tố phong thủy “tọa thủy hướng minh”, mang lại giá trị sinh thái và tiềm năng phát triển lâu dài.
Liên kết giao thông thuận lợi
Từ dự án, cư dân dễ dàng kết nối đến các tuyến giao thông huyết mạch của khu vực như Quốc lộ 1A, Quốc lộ 51, cao tốc TP.HCM – Long Thành – Dầu Giây, cũng như các tuyến đường nội đô của thành phố.
Khoảng cách di chuyển nổi bật:
- Trung tâm hành chính Biên Hòa: khoảng 5 phút
- Kết nối Quốc lộ 1A, Quốc lộ 51: khoảng 10 phút
- Ga Metro Bến xe Miền Đông mới (tuyến Metro số 1): khoảng 15 phút
- Sân bay Quốc tế Long Thành: khoảng 25 – 30 phút
- TP. Hồ Chí Minh: khoảng 25 km
- Dĩ An: khoảng 14 km
Lợi thế phát triển hạ tầng và tiềm năng đầu tư
Khu vực Biên Hòa đang được đầu tư mạnh về hạ tầng giao thông như cao tốc Biên Hòa – Vũng Tàu, đường Vành đai 3 TP.HCM và sân bay quốc tế Long Thành. Khi các dự án này hoàn thiện, khả năng kết nối vùng sẽ được nâng cao đáng kể, giúp giá trị bất động sản tại khu vực Cù Lao Phố tăng trưởng mạnh trong tương lai.
Nhờ sở hữu vị trí trung tâm, 4 mặt giáp sông và hạ tầng kết nối chiến lược, Sun Group Cù Lao Phố được kỳ vọng trở thành khu đô thị sinh thái cao cấp và điểm nhấn mới của đô thị Biên Hòa.
ĐĂNG KÝ ĐƯA ĐÓN THAM QUAN VÀ TÌM HIỂU
Sun Group Cù Lao Phố
Cảm ơn Quý Khách Đã gửi thông tin.
Tiện ích nội khu Sun Group Cù Lao Phố
Dự án Sun Group Cù Lao Phố tại Biên Hòa, Đồng Nai được định hướng phát triển theo mô hình đô thị sinh thái ven sông “All-in-one” với mật độ xây dựng thấp. Trên tổng quy mô khoảng 291 ha, chủ đầu tư dành hơn 40% diện tích cho hệ sinh thái tiện ích và mảng xanh, mang đến môi trường sống hiện đại, tiện nghi và gần gũi thiên nhiên.
Hệ sinh thái công viên và không gian xanh
- Công viên sinh thái ven sông Đồng Nai
- Hệ thống 5 công viên chủ đề gồm: công viên sinh thái, công viên văn hóa di sản, công viên thể thao, công viên trẻ em và các dải xanh dạo bộ
- Hồ cảnh quan và các tuyến đường dạo bộ ven sông
- Không gian xanh rộng lớn giúp điều hòa vi khí hậu và mang lại môi trường sống trong lành
Khu thương mại và dịch vụ
- Trung tâm thương mại hiện đại
- Phố shophouse thương mại – dịch vụ sầm uất
- Chuỗi nhà hàng, quán cà phê và khu mua sắm
- Khách sạn và khu nghỉ dưỡng cao cấp phục vụ cư dân và du khách
Tiện ích văn hóa – cộng đồng
- Quảng trường trung tâm và quảng trường ven sông
- Đài ngắm cảnh và không gian tổ chức sự kiện
- Khu sinh hoạt cộng đồng và các khu vực tổ chức lễ hội, hoạt động văn hóa
Giáo dục và y tế nội khu
- Hệ thống trường học liên cấp quốc tế từ mầm non đến trung học
- Khu giáo dục và hoạt động ngoại khóa
- Bệnh viện và trung tâm y tế hiện đại phục vụ nhu cầu chăm sóc sức khỏe cư dân
Khu thể thao và giải trí
- Hồ bơi và hồ bơi vô cực
- Sân thể thao đa năng: tennis, bóng đá mini
- Phòng gym, yoga và khu tập luyện ngoài trời
- Khu vui chơi trẻ em và khu BBQ ngoài trời
Tiện ích đặc quyền ven sông
- Bến du thuyền cao cấp tận dụng lợi thế 4 mặt giáp sông Đồng Nai
- Các tuyến du lịch đường thủy và không gian nghỉ dưỡng ven sông
Hạ tầng và an ninh
- Hệ thống giao thông nội khu hiện đại, kết nối thuận tiện với trung tâm Biên Hòa
- Hệ thống camera giám sát và an ninh đa lớp 24/7
- Không gian sống riêng tư, an toàn cho cộng đồng cư dân
Với hệ thống tiện ích đa dạng và quy hoạch bài bản, Sun Group Cù Lao Phố hứa hẹn mang đến một không gian sống sinh thái, tiện nghi và đẳng cấp ngay giữa trung tâm đô thị, nơi cư dân có thể tận hưởng trọn vẹn mọi nhu cầu sống – làm việc – nghỉ dưỡng trong cùng một khu đô thị.
Tiện ích ngoại khu đa chiều
1. Kết Nối Trung Tâm Hành Chính TP. Biên Hòa
Dự án Sun Group Cù Lao Phố nằm gần Trung tâm hành chính TP. Biên Hòa, giúp cư dân dễ dàng tiếp cận các cơ quan quản lý nhà nước và các dịch vụ hành chính quan trọng.
2. Hệ Thống Y Tế Chất Lượng Cao
Trong bán kính vài km từ dự án có Bệnh viện Đồng Nai cùng nhiều cơ sở y tế lớn, đáp ứng đầy đủ nhu cầu chăm sóc sức khỏe cho cư dân khu đô thị.
3. Trung Tâm Thương Mại Và Mua Sắm Hiện Đại
Cư dân có thể nhanh chóng tiếp cận các trung tâm mua sắm lớn như Vincom Biên Hòa cùng hệ thống siêu thị, cửa hàng tiện ích, nhà hàng và khu giải trí.
4. Hệ Thống Giáo Dục Uy Tín
Dự án nằm gần nhiều cơ sở giáo dục chất lượng, nổi bật là Đại học Lạc Hồng, cùng hệ thống trường học các cấp phục vụ nhu cầu học tập của cư dân.
5. Kết Nối Khu Công Nghiệp Lớn Tại Biên Hòa
Sun Group Cù Lao Phố nằm gần các khu công nghiệp Biên Hòa, tạo điều kiện thuận lợi cho nhu cầu làm việc, kinh doanh và gia tăng lượng chuyên gia, kỹ sư sinh sống tại khu vực.
6. Công Viên Ven Sông Quy Mô Lớn
Khu vực dự án được quy hoạch phát triển công viên ven sông quy mô hàng chục hecta, kết hợp không gian xanh, khu vui chơi giải trí và đường dạo bộ ven sông, mang lại môi trường sống trong lành và cảnh quan sinh thái hiếm có.
7. Phát Triển Du Lịch Đường Sông Và Bến Du Thuyền
Khu vực Biên Hòa đang được định hướng phát triển bến du thuyền và tuyến du lịch đường sông kết nối Biên Hòa – TP.HCM – Bà Rịa Vũng Tàu, mở ra tiềm năng du lịch và dịch vụ cao cấp trong tương lai.
8. Hạ Tầng Giao Thông Thuận Lợi
Từ dự án, cư dân có thể dễ dàng di chuyển đến trung tâm TP. Biên Hòa, ngã tư Vũng Tàu, Quốc lộ 1K và các tuyến giao thông huyết mạch, giúp kết nối nhanh với TP.HCM và các tỉnh lân cận.
9. Trung Tâm Thương Mại Aeon Mall Biên Hòa Trong Tương Lai
Tỉnh Đồng Nai đã phê duyệt quy hoạch Trung tâm thương mại Aeon Mall Biên Hòa tại đường Đặng Văn Trơn, phường Hiệp Hòa. Đây sẽ là tổ hợp mua sắm – giải trí quy mô lớn của tập đoàn Aeon (Nhật Bản), góp phần nâng tầm giá trị bất động sản khu vực.
10. Tiềm Năng Gia Tăng Giá Trị Bất Động Sản
Nhờ hệ thống hạ tầng giao thông, tiện ích thương mại và định hướng phát triển đô thị ven sông, Sun Group Biên Hòa được đánh giá có tiềm năng tăng giá bền vững, đặc biệt hấp dẫn với các nhà đầu tư dài hạn.
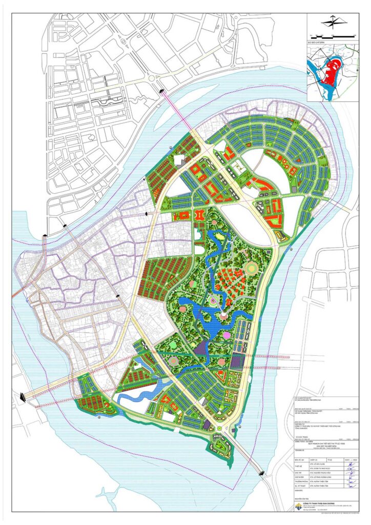
Mặt bằng Quy Hoạch
Sun Group Cù Lao Phố có tổng diện tích khoảng 291 ha, với tổng vốn đầu tư dự kiến hơn 72.289 tỷ đồng. Dự án được quy hoạch với quy mô dân số khoảng 31.600 người, cung cấp ra thị trường hơn 10.191 sản phẩm nhà ở. Đây là khu đô thị đảo phức hợp với nhiều loại hình phát triển như nhà phố liền kề, biệt thự, chung cư thương mại, nhà ở xã hội, nhà tái định cư cùng các khu thương mại – dịch vụ và du lịch nghỉ dưỡng, đáp ứng đa dạng nhu cầu an cư, đầu tư và kinh doanh.
Phân Khu Chức Năng Dự Án
Dự án được quy hoạch bài bản với nhiều phân khu chức năng nhằm tạo nên một hệ sinh thái đô thị hoàn chỉnh:
Khu nhà ở thấp tầng
Bao gồm nhà phố liền kề và biệt thự cao cấp, được bố trí dọc theo các trục đường chính hoặc gần khu công viên và ven sông để tối ưu không gian sống và cảnh quan.
Khu căn hộ cao tầng
Gồm các tòa chung cư thương mại hiện đại với tầm nhìn rộng mở ra sông Đồng Nai và toàn cảnh khu đô thị.
Khu thương mại – dịch vụ
Quy hoạch các trung tâm thương mại, shophouse, khu văn phòng, khách sạn và các dịch vụ giải trí nhằm đáp ứng nhu cầu mua sắm, kinh doanh và nghỉ dưỡng.
Khu du lịch – nghỉ dưỡng
Phát triển các khu resort ven sông, khách sạn cao cấp và không gian du lịch sinh thái, góp phần khai thác tiềm năng du lịch của Cù Lao Phố.
Công viên và không gian xanh
Hơn 48% diện tích dự án dành cho công viên ven sông, cảnh quan sinh thái, hồ nước và đường dạo bộ, tạo môi trường sống xanh mát và điều hòa vi khí hậu.
Cơ Cấu Sản Phẩm Nhà Ở
Tổng cộng dự án cung cấp hơn 10.191 sản phẩm nhà ở, bao gồm:
- Nhà liền kề: 2.086 căn
- Biệt thự: 739 căn
- Biệt thự đơn lập: 145 căn
- Biệt thự song lập: 594 căn
- Chung cư thương mại: 5.088 căn
- Nhà ở xã hội: 1.310 căn
- Nhà tái định cư: 968 căn
Các loại hình sản phẩm được bố trí hài hòa, tạo nên cộng đồng cư dân đa dạng và phát triển bền vững.
Hạ Tầng Giao Thông Và Kết Nối Nội Khu
Hạ tầng giao thông của dự án được quy hoạch đồng bộ với hệ thống đường nội bộ rộng rãi, kết nối linh hoạt giữa các phân khu chức năng. Bên cạnh đó, dự án còn được định hướng phát triển bến thuyền và các tuyến giao thông đường thủy, tận dụng lợi thế sông nước đặc trưng của khu vực. Từ Sun Group Cù Lao Phố, cư dân có thể dễ dàng di chuyển đến trung tâm TP. Biên Hòa cũng như kết nối nhanh với các trục giao thông quan trọng như Quốc lộ 1A, Quốc lộ 51 và các tuyến đường huyết mạch của khu vực Đông Nam Bộ.
Điểm Nhấn Trong Quy Hoạch
Điểm nổi bật trong quy hoạch của Sun Group Cù Lao Phố là mô hình phát triển “Đô thị trong công viên – Công viên trong đô thị”, với mật độ xây dựng thấp và phần lớn diện tích dành cho cảnh quan xanh và tiện ích công cộng. Nhờ đó, dự án mang đến sự cân bằng giữa môi trường sống sinh thái và hạ tầng đô thị hiện đại. Sự kết hợp hài hòa giữa không gian sống ven sông, tiện ích cao cấp và quy hoạch đồng bộ hứa hẹn sẽ tạo nên một khu đô thị kiểu mẫu, góp phần thay đổi diện mạo đô thị của TP. Biên Hòa trong tương lai.
Thiết Kế Và Các Loại Hình Sản Phẩm Tại Sun Group Cù Lao Phố
Thiết Kế Căn Hộ Tại Sun Group Cù Lao Phố
Các sản phẩm tại Sun Group Cù Lao Phố được thiết kế theo phong cách kiến trúc hiện đại, chú trọng tối ưu không gian sống và tận dụng tối đa lợi thế cảnh quan ven sông. Ý tưởng thiết kế hướng đến không gian mở, tăng cường thông gió tự nhiên và mở rộng tầm nhìn, giúp mỗi căn nhà đều đón được ánh sáng và gió trời, mang lại môi trường sống thoáng đãng, gần gũi với thiên nhiên.
Đa Dạng Loại Hình Bất Động Sản
Dự án cung cấp nhiều dòng sản phẩm khác nhau nhằm đáp ứng nhu cầu đa dạng của khách hàng, từ an cư lâu dài đến đầu tư kinh doanh. Các loại hình chính tại dự án bao gồm căn hộ cao tầng, nhà phố liền kề, biệt thự ven sông và shophouse thương mại. Sự đa dạng này giúp khu đô thị hình thành cộng đồng cư dân năng động, đồng thời tạo nên một hệ sinh thái sống – làm việc – kinh doanh hoàn chỉnh.
Biệt Thự Sun Group Đồng Nai
Biệt thự tại Sun Group Đồng Nai được quy hoạch tại các vị trí đẹp, gần công viên hoặc ven sông, với thiết kế sang trọng và không gian sống riêng tư. Dự án phát triển nhiều loại biệt thự như biệt thự đơn lập, biệt thự song lập và biệt thự tứ lập.
Biệt thự đơn lập là dòng sản phẩm cao cấp nhất với bốn mặt thoáng và sân vườn riêng, phù hợp với khách hàng yêu thích không gian sống yên tĩnh, đẳng cấp. Trong khi đó, biệt thự song lập gồm hai căn nhà ghép đôi, chia sẻ một bức tường chung nhưng vẫn đảm bảo sự riêng tư, đồng thời tối ưu diện tích đất và chi phí đầu tư. Bên cạnh đó, biệt thự tứ lập gồm bốn căn nhà được bố trí theo bố cục đồng bộ, phù hợp với các gia đình muốn sống gần nhau trong một cộng đồng nhỏ, khép kín và an ninh.
Nhà Phố Liền Kề Và Shophouse Thương Mại
Nhà phố liền kề tại Sun Group Cù Lao Phố được xây dựng theo dãy với thiết kế đồng bộ, hiện đại, tạo nên diện mạo đô thị chỉnh chu và sầm uất. Đây là loại hình phù hợp với các gia đình muốn sinh sống trong khu đô thị có hạ tầng hoàn chỉnh.
Ngoài ra, dự án còn phát triển shophouse thương mại, thường nằm tại các trục đường chính hoặc khu trung tâm dịch vụ. Các căn shophouse được thiết kế đa năng, với tầng trệt dành cho hoạt động kinh doanh và các tầng trên là không gian sinh hoạt. Mô hình “hai trong một” này vừa phục vụ nhu cầu ở vừa tạo cơ hội kinh doanh và đầu tư sinh lời cho chủ sở hữu.
Căn Hộ Chung Cư Cao Cấp
Bên cạnh các sản phẩm thấp tầng, dự án còn phát triển hệ thống căn hộ chung cư cao cấp với nhiều loại diện tích khác nhau, từ studio đến căn hộ 4 phòng ngủ, phù hợp với nhiều nhóm khách hàng.
Căn hộ studio có thiết kế nhỏ gọn, không gian mở và tối giản, phù hợp với người độc thân hoặc khách hàng trẻ. Căn hộ 1 phòng ngủ có diện tích lớn hơn, bố trí phòng ngủ riêng biệt, thích hợp cho chuyên gia, cặp đôi hoặc gia đình nhỏ. Với các gia đình có nhu cầu không gian rộng rãi hơn, căn hộ 2 phòng ngủ và 3 phòng ngủ mang lại không gian sinh hoạt thoải mái với phòng khách, bếp và các phòng ngủ tách biệt.
Đặc biệt, căn hộ 4 phòng ngủ là dòng sản phẩm cao cấp với diện tích lớn, thường được bố trí tại các vị trí đẹp trong tòa nhà. Thiết kế chú trọng sự sang trọng và tiện nghi, phù hợp với những gia đình đông thành viên hoặc khách hàng có nhu cầu không gian sống rộng rãi và đẳng cấp.
Nhờ sự đa dạng về loại hình sản phẩm cùng thiết kế hiện đại, Sun Group Cù Lao Phố hứa hẹn mang đến nhiều lựa chọn phù hợp cho cả khách hàng mua để ở lẫn nhà đầu tư đang tìm kiếm cơ hội tại thị trường bất động sản Biên Hòa.
chính sách bán hàng và phương thức thanh toán
Phương thức thanh toán
Trong thời gian tới, khi dự án chính thức được triển khai mở bán, chủ đầu tư dự kiến sẽ đưa ra nhiều phương thức thanh toán linh hoạt, phù hợp với cả khách hàng mua ở thực và nhà đầu tư. Các chính sách bán hàng và lộ trình thanh toán chi tiết sẽ được công bố trong giai đoạn tiếp theo khi dự án hoàn thiện đầy đủ các điều kiện pháp lý và bước vào giai đoạn triển khai chính thức.
Bảng Giá Dự Án Sun Group Cù Lao Phố (T03/2026)
|
Loại sản phẩm |
Diện tích |
Số lượng dự kiến |
Giá bán |
Thông tin |
|
Shophouse |
90m² – 150m² |
Đang cập nhật |
~ 12 – 20 tỷ |
Nhận bảng giá chi tiết |
|
Biệt thự |
200m² – 350m² |
Đang cập nhật |
~ 30 tỷ |
Nhận bảng giá chi tiết |
|
Căn hộ hạng sang |
32m² – 120m² |
Đang cập nhật |
~ 3 – 12 tỷ |
Nhận bảng giá chi tiết |
Pháp lý dự án Sun Group Cù Lao Phố
Hiện nay, dự án Sun Group Cù Lao Phố (Khu đô thị Hiệp Hòa) đang trong giai đoạn hoàn thiện các thủ tục pháp lý và quy hoạch theo quy định của tỉnh Đồng Nai. Liên danh nhà đầu tư do Sun Group dẫn dắt đã đăng ký thực hiện dự án và đang triển khai các bước pháp lý cần thiết để chuẩn bị cho quá trình phát triển trong thời gian tới.
Mới đây, Ủy ban Nhân dân tỉnh Đồng Nai đã ban hành quyết định phê duyệt quy hoạch chi tiết tỷ lệ 1/500 cho Khu đô thị Hiệp Hòa tại phường Trấn Biên, TP. Biên Hòa. Theo quy hoạch được duyệt, dự án có tổng diện tích hơn 291 ha, trong đó khoảng 68 ha được bố trí cho đất ở, chiếm hơn 23% diện tích toàn khu. Phần diện tích còn lại được phân bổ cho các công trình hạ tầng xã hội, dịch vụ – du lịch, hệ thống cây xanh, giao thông, bãi đỗ xe, hạ tầng kỹ thuật và mặt nước nhằm tạo nên một khu đô thị sinh thái hiện đại và đồng bộ.
Dự án được định hướng phát triển theo mô hình đô thị phức hợp dịch vụ mật độ thấp, kết hợp hài hòa giữa nhà ở, khu thương mại – dịch vụ, biệt thự sinh thái, khu du lịch và các công trình công cộng. Không gian đô thị được thiết kế để hình thành các tuyến phố thương mại sôi động, đáp ứng đồng thời nhu cầu an cư, kinh doanh, lưu trú và phát triển du lịch tại khu vực trung tâm Biên Hòa.
Song song với quá trình hoàn thiện quy hoạch, tỉnh Đồng Nai cũng đã thành lập tổ công tác hỗ trợ công tác bồi thường và giải phóng mặt bằng cho dự án. Theo thống kê, khu vực thực hiện dự án có hơn 3.000 thửa đất, ảnh hưởng đến khoảng 1.700 hộ dân, do đó công tác giải phóng mặt bằng đang được triển khai từng bước nhằm đảm bảo tiến độ thực hiện dự án.
Chủ đầu tư Dự Án Sun Group Cù Lao Phố
Dự án Sun Group Cù Lao Phố (Khu đô thị Hiệp Hòa) được phát triển bởi liên danh 5 doanh nghiệp, trong đó Sun Group giữ vai trò chủ đạo. Các đơn vị tham gia liên danh gồm: Công ty TNHH Lan Anh – Phú Quốc, Công ty Cổ phần Tập đoàn Mặt Trời (Sun Group), Công ty TNHH Mặt Trời Hạ Long, Công ty Cổ phần Tập đoàn Bất động sản Mặt Trời và Công ty TNHH Đầu tư Biển Đẹp Phú Quốc. Tổng mức đầu tư của dự án lên tới khoảng 72.300 tỷ đồng, trong đó hơn 10.800 tỷ đồng là vốn góp trực tiếp từ liên danh, phần còn lại được huy động từ các nguồn tài chính khác. Riêng chi phí dành cho công tác bồi thường, hỗ trợ và tái định cư dự kiến khoảng 16.700 tỷ đồng.
Trong liên danh này, Sun Group là tập đoàn bất động sản – du lịch hàng đầu Việt Nam, nổi tiếng với nhiều dự án quy mô lớn và đẳng cấp. Với kinh nghiệm phát triển các khu đô thị, khu nghỉ dưỡng và tổ hợp du lịch hàng đầu, Sun Group đã góp phần thay đổi diện mạo nhiều địa phương trên cả nước.
Một số dự án tiêu biểu của tập đoàn có thể kể đến như Sun World Ba Na Hills, Sun Grand City, Sun Premier Village và InterContinental Danang Sun Peninsula Resort. Những dự án này không chỉ tạo dấu ấn trên thị trường bất động sản mà còn góp phần nâng tầm du lịch và hạ tầng đô thị tại nhiều khu vực.
Với dự án Sun Cù Lao Phố, Sun Group định hướng phát triển nơi đây trở thành khu đô thị sinh thái ven sông hiện đại, đóng vai trò hạt nhân trong chiến lược mở rộng không gian đô thị của tỉnh Đồng Nai. Nhờ tiềm lực tài chính mạnh mẽ cùng kinh nghiệm triển khai nhiều đại dự án, liên danh do Sun Group dẫn dắt được kỳ vọng sẽ kiến tạo một khu đô thị ven sông đẳng cấp, góp phần nâng tầm diện mạo đô thị Biên Hòa và tạo ra chuẩn sống mới cho khu vực trong tương lai.
Tiến Độ Xây Dựng Dự Án
Dự án Sun Group Cù Lao Phố được định hướng phát triển theo lộ trình dài hạn nhằm đảm bảo quá trình xây dựng đồng bộ và bền vững. Theo kế hoạch, dự án sẽ được triển khai trong khoảng 12 năm, bắt đầu từ năm 2024 và dự kiến hoàn thiện toàn bộ vào năm 2036. Trong thời gian thực hiện, dự án sẽ được phân kỳ thành nhiều giai đoạn phát triển với các hợp phần chính, bao gồm xây dựng hạ tầng kỹ thuật, phát triển các khu nhà ở, tiện ích dịch vụ và không gian cảnh quan.
Việc triển khai theo từng giai đoạn giúp chủ đầu tư kiểm soát tiến độ thi công, đồng thời đảm bảo các phân khu chức năng được hoàn thiện đồng bộ. Khi hoàn thành, khu đô thị sẽ hình thành một quần thể đô thị ven sông hiện đại, kết hợp hài hòa giữa không gian sống, nghỉ dưỡng, thương mại và du lịch.
Dự án do Sun Group cùng liên danh các doanh nghiệp triển khai với mục tiêu phát triển thành một khu đô thị sinh thái quy mô lớn tại trung tâm Biên Hòa. Không chỉ tập trung vào nhà ở, dự án còn hướng đến mô hình đô thị – du lịch – dịch vụ ven sông, tích hợp các tiện ích thương mại, giải trí và nghỉ dưỡng cao cấp.
Sau khi hoàn thiện, Sun Group Cù Lao Phố được kỳ vọng sẽ trở thành biểu tượng đô thị mới của Đồng Nai, góp phần thúc đẩy phát triển kinh tế, du lịch và thị trường bất động sản của khu vực trong tương lai.
Đăng ký tham quan căn hộ mẫu, nhà thực tế
LIÊN TRỰC TIẾP CHỦ ĐẦU TƯ DỰ ÁN ĐỂ ĐƯỢC HỖ TRỢ:
Địa chỉ: 78 đường B2, phường An Lợi Đông, Quận 2, TP.HCM
Hotline: 0888888 049 (24/7)
Website: https://360batdongsan.vn/sun-group-cu-lao-pho/
Email: 360batdongsansaigon@gmail.com
LIÊN HỆ TƯ VẤN
Cảm ơn Quý Khách Đã gửi thông tin.
